Réacteur à cœur de fer de type sec série CKSC
Tension nominale: 10 kV/35 kV
Fréquence nominale: 50/60 Hz
Scénarios d'application: Ces produits sont largement utilisés dans les systèmes électriques, l'industrie chimique, la métallurgie, les mines de charbon, les chemins de fer électrifiés et d'autres applications spéciales.
Réacteur à filtre harmonique haute tension en série avec noyau en fer de type sec
Application du réacteur à noyau de fer en série de type sec.
Notre société produit des réacteurs à cœur de fer de type sec de la série CKSC avec des niveaux de tension de 35 kV ou moins et des capacités de 2000 kVar ou moins.
Le réacteur en série est connecté en série avec la banque de condensateurs à haute tension et le système d'alimentation électrique 6 - 35 kV pour limiter le courant d'entrée de la banque de condensateurs parallèle et supprimer les harmoniques du réseau électrique.
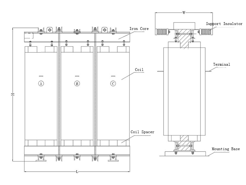
Structure du réacteur à noyau de fer en série de type sec
Le réacteur à noyau de fer en série a deux structures principales: le noyau de fer et la bobine.
Le cœur du réacteur à cœur de fer de type sec a une structure à trois colonnes. La colonne centrale est composée d'un disque échelonné ou radial, et les jougs de fer supérieurs et inférieurs sont rectangulaires ou circulaires. Le noyau est fait de tôles d'acier au silicium laminées à froid de haute qualité. Pour réduire le bruit de base, le disque de base est coulé et encapsulé entièrement avec une résine haute résistance. L'écart entre les disques du cœur est composé de plusieurs petits segments, ce qui réduit les pertes de cœur et le bruit. Le disque central est pressé par une vis magnétique basse et un joug de fer. Pour réduire les vibrations du cœur pendant le fonctionnement, des matériaux tampons sont utilisés entre le cœur et la base du réacteur.
La bobine est enroulée avec du fil de cuivre ou d'aluminium enveloppé de matériaux isolants de haute qualité. Afin d'éviter la génération de courant circulant entre plusieurs fils lors de l'enroulement, le fil est complètement transposé. Après l'enroulement, une résine époxy à deux composants est utilisée pour le mouler sous vide afin de s'assurer qu 'il n'y a pas d'espace entre les bobines et les couches d'enroulement, réduisant ainsi les décharges partielles.
Méthode de câblage du réacteur en série avec un noyau de fer de type sec.
Caractéristiques du réacteur à cœur de fer de type sec
1)Le réacteur à cœur de fer de type sec CKSC adopte une structure à cœur de fer de type sec avec coexistence triphasée. Le noyau de fer est fait de tôles d'acier au silicium de haute qualité. La colonne de noyau de fer est composée de plusieurs espaces répartis uniformément, et l'espace utilise une plaque de fibre de verre époxy comme remplissage pour s'assurer qu 'il n'est pas altéré pendant le fonctionnement à long terme.
2)La structure générale du réacteur à cœur de fer de type sec est simple, de taille compacte, de poids léger, de conception raisonnable et facile à installer. C'est un équipement de support idéal pour les cadres de compensation de condensateur et les dispositifs d'armoire intérieure, et n'a pas de pollution électromagnétique ou de pollution par les huiles, une bonne résistance au feu, un flux magnétique de fuite inférieur et une faible interférence électromagnétique avec l'environnement.
3)La bobine est faite de coulée époxy, et est renforcée avec un maillage de verre époxy à l'intérieur et à l'extérieur de la bobine. Le système de coulée époxy est fondu sous vide, avec une excellente dissipation thermique, une bonne isolation, une résistance mécanique élevée, une bonne stabilité thermique dynamique et l'absence de fissures.
4)La bobine de coulée époxy n'absorbe pas l'eau, a de faibles décharges partielles et peut fonctionner en toute sécurité dans des conditions environnementales défavorables.
5)L'espace entre la colonne centrale et le tube isolant est fixé avec de la colle de résine époxy, et le joug de fil supérieur et la bobine sont serrés avec une vis de traction pour intégrer le noyau et la bobine, ce qui renforce la résistance d'isolation entre les deux et réduit considérablement le bruit de fonctionnement du réacteur.
6)Des composants d'isolation spéciaux sont installés entre la bobine et le noyau, et entre le noyau et le sol pour assurer la distance d'isolation électrique.
7)Le cœur et l'enroulement du réacteur ne sont immergés dans aucun liquide. La méthode de refroidissement est à l'air, sans fuite d'huile, facile à fabriquer, à entretenir et à utiliser. 8)Un logiciel spécial est utilisé pour la conception d'optimisation auxiliaire. La valeur d'inductance est précise et l'augmentation de température a une marge raisonnable.
Réacteur à filtre harmonique série haute tension avec noyau de fer sec
1. L'altitude ne doit pas dépasser 1000 mètres.
2. La température ambiante de fonctionnement doit être comprise entre-25 ° C et +45 ° C et l'humidité relative ne doit pas dépasser 90%.
3. Il ne doit pas y avoir de gaz nocifs dans l'environnement, de matières inflammables ou explosives.
4. L'environnement doit être bien ventilé. L'altitude ne doit pas dépasser 1000 mètres.
Réacteur à filtre harmonique série haute tension avec noyau de fer sec.
Tension nominale du système.
Tension nominale de la banque de condensateurs.
Capacité nominale du réacteur.
Courant nominal du réacteur.
La réactance nominale.
Réacteur à filtre harmonique à haute tension en série avec noyau de fer de type sec.
Nous acceptons les commandes OEM. Les spécifications ci-dessus sont d'usage courant et ne servent qu'à titre de référence. Ils peuvent être personnalisés selon les exigences du client. S'il s'agit d'une modification, indiquez la plaque signalétique de l'équipement d'origine, les dessins et la raison du remplacement. De cette façon, nous pouvons recommander une solution alternative.
Contenu connexe
Réacteur à cœur de fer de type sec série CKSC
Réacteur à noyau de fer sec de type SVG


| Capacité nominale | Gars | Tension nominale | Terminal | Terminal | Réactance | Perte (W) | Condenseur | Poids (kg) |
| (KVAR) | Ligne (kV) | Tension (V) | Courant (A) | Taux (%) | Capacité (KVAR) | |||
| 12 | CKSC-12/10-6 | 11 | 381 | 10,5 | 6 | 720 | 200 | 180 |
| 24 | CKSC-24/10-6 | 11 | 381 | 21 | 6 | 750 | 400 | 290 |
| 36 | CKSC-36/6-6 | 6.6 | 228 | 52,6 | 6 | 1050 | 600 | 350 |
| 36 | CKSC-36/10-6 | 11 | 381 | 31,5 | 6 | 1050 | 600 | 350 |
| 60 | CKSC-60/6-6 | 6.6 | 228 | 87,7 | 6 | 1650 | 1000 | 450 |
| 60 | CKSC-60/10-6 | 11 | 381 | 52,5 | 6 | 1650 | 1000 | 450 |
| 90 | CKSC-90/6-6 | 6.6 | 228 | 131 | 6 | 1800 | 1500 | 650 |
| 90 | CKSC-90/10-6 | 11 | 381 | 78,7 | 6 | 1800 | 1500 | 650 |
| 108 | CKSC-108/6-6 | 6.6 | 228 | 157,5 | 6 | 2350 | 1800 | 700 |
| 108 | CKSC-108/10-6 | 11 | 381 | 94,5 | 6 | 2350 | 1800 | 700 |
| 120 | CKSC-120/6-6 | 6.6 | 228 | 175 | 6 | 2750 | 2000 | 780 |
| 120 | CKSC-120/10-6 | 11 | 381 | 105 | 6 | 2750 | 2000 | 780 |
| 150 | CKSC-150/6-6 | 6.6 | 228 | 219 | 6 | 2860 | 2500 | 1050 |
| 150 | CKSC-150/10-6 | 11 | 381 | 131.2 | 6 | 2860 | 2500 | 1050 |
| 180 | CKSC180/6-6 | 6.6 | 228 | 263 | 6 | 2950 | 3000 | 1250 |
| 180 | CKSC-180/10-6 | 11 | 381 | 157,5 | 6 | 2950 | 3000 | 1250 |
| 240 | CKSC-240/6-6 | 6.6 | 228 | 351 | 6 | 3450 | 4000 | 1450 |
| 240 | CKSC-240/10-6 | 11 | 381 | 210 | 6 | 3450 | 4000 | 1450 |
| 300 | CKSC-300/10-6 | 11 | 381 | 262,5 | 6 | 4260 | 5000 | 1650 |
| 360 | CKSC-360/10-6 | 11 | 381 | 315 | 6 | 4850 | 6000 | 2200 |
| 450 | CKSC-450/10-6 | 11 | 381 | 394 | 6 | 5430 | 7000 | 2400 |
| 600 | CKSC-600/10-6 | 11 | 381 | 525 | 6 | 5840 | 10000 | 3200 |