Tension nominale: 10 kV/20 kV/35 kV
Capacité nominale: 630 kVA-5000 kVA
Scénarios d'application: Adapté à la construction et à la transformation des réseaux électriques urbains et ruraux.
Certifications et normes: délivrées par TÜV: CE, CB, IEC, EN, ISO 9001, 14001 et 45001.
Les sous-stations préfabriquées, également appelées sous-stations préfabriquées, fournissent de l'énergie directement aux utilisateurs. Il s'agit d'un équipement de distribution d'énergie compact, préfabriqué, intérieur et extérieur, qui intègre un appareillage de commutation haute tension (salle haute tension), un transformateur de distribution (salle des transformateurs) et un dispositif de distribution basse tension (salle basse tension) selon un schéma de câblage spécifique. Les fonctions de réduction de tension et de distribution basse tension sont combinées de manière organique, et la sous-station est installée dans une boîte de structure en acier mobile, entièrement fermée, résistante à l'humidité, à la poussière et au feu, particulièrement adaptée à la construction et à la reconstruction des réseaux électriques urbains et ruraux.
La salle à haute tension est le côté de l'alimentation électrique, généralement des lignes d'entrée de 35 kV, 20 kV ou 10 kV, qui comprennent des barres collectrices à haute tension, des disjoncteurs ou des fusibles, des transformateurs de tension, des déchargeurs, etc. Le transformateur est situé dans la salle des transformateurs et constitue l'équipement principal de la sous-station de type boîte. La salle des transformateurs comprend les transformateurs, qui constituent l'équipement principal du poste. La salle basse tension comprend des barres collectrices basse tension, des disjoncteurs basse tension, des appareils de mesure, etc. Les lignes sont dérivées des barres collectrices basse tension pour fournir de l'énergie aux utilisateurs.
Les sous-stations préfabriquées sont divisées en sous-stations triangulaires et rectangulaires en fonction de la disposition de leur structure; sous-stations de type boîtier terminal et sous-stations de type boîtier réseau annulaire en fonction du mode d'alimentation électrique haute tension. Les deux côtés de la base de la boîte sont équipés de dispositifs de levage push-pull qui facilitent le levage, le transport et l'installation. Les salles haute et basse tension peuvent adopter une structure standard, une structure d'écran ou une structure de cadre. La première est très complète et la seconde a une taille globale compacte.
Règles de mise en œuvre
GB 1094.1 - 2013: Transformateurs de puissance-Partie 1: Généralités.
GB 1094.2 - 2013: Transformateurs de puissance-Partie 2: Augmentation de température.
Transformateurs de puissance-Partie 3: Niveaux d'isolation, essais d'isolation et lacunes pour l'isolation externe.
GB 3906 - 2006: 3,6 kV-40. Appareils de commutation et commandes avec boîtier métallique à courant alternatif de 5 kV GB/T 11022 - 2011: Conditions techniques communes pour les normes de commutation et de commandes à haute tension.
GB 7251.1 - 2013: Commutateurs et commandes basse tension Partie 1: Généralités GB 14048.1 - 2006: Commutateurs et commandes basse tension Partie 1: Généralités GB/T17467 - 2010: Substations AT/BT préfabriquées.
Caractéristiques de
+ Taille compacte, taille compacte, mobilité à tout moment en fonction de la demande, transport et installation faciles.
+ Répartition structurelle raisonnable, avec la possibilité de configuration en forme triangulaire ou rectangulaire selon la demande.
+ Chaque pièce fonctionnelle est indépendante, ce qui facilite et accélère la maintenance et le remplacement des pièces.
+ Le boîtier a une ventilation naturelle, ce qui réduit la chaleur pendant le fonctionnement.
+ Il peut être utilisé dans divers environnements avec un haut niveau de protection.
Conditions environnementales
Altitude inférieure à 4000 m;
b Température ambiante: -45 ° C à +45 ° C;
Humidité relative: L'humidité moyenne quotidienne ne dépasse pas 95% et la moyenne mensuelle ne dépasse pas 90%.
Remarque: Si les conditions ci-dessus ne sont pas remplies, vous devez consulter le fabricant.
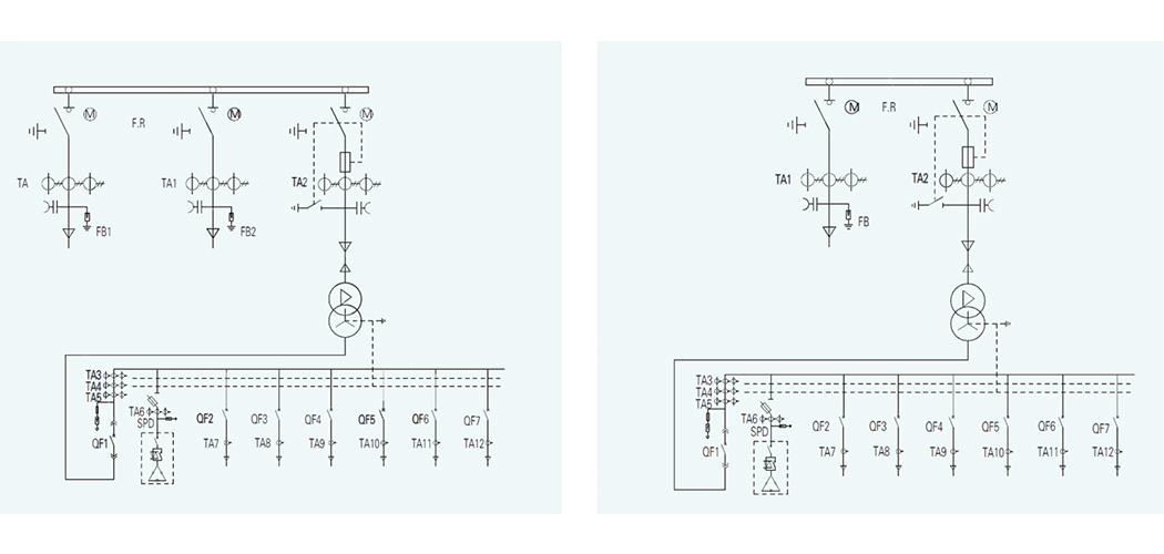
Diagramme unifilar atypique.
Diagramme principal à une seule ligne d'une sous-station de réseau en anneau. Diagramme unifilar principal d'une sous-station terminale.
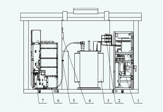
Dessin de la limite de la boîte:(Prenons 630 kVA comme exemple)
1. Basse tension 3. Transformée 5. Embrace pour les câbles
2. Bar isolé rack 4. Type de transformateur 6. Câble haute tension de 10 kV
7.Apparence de haute tension
Sous-station préfabriquée (sous-station de type boîte).
Transformateurs de piédestal de style américain.
Transformateur spécial pour la production d'énergie nouvelle (photovoltaïque/éolien).
Transformateur à boîtier spécial pour la nouvelle production d'énergie (photovoltaïque, éolien).


